
Preliminary 3-D Rendering of Option A. (Any additions to the building will match the building.)
Option A
Changes to Current Structure and Layout
- Addition of 2nd lift at Northeast Entrance – with access to Cook Hall and Offices.
- Ramp into Nursery
- Internal Changes with offices and reception for better security.


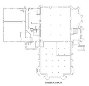
Basement Level


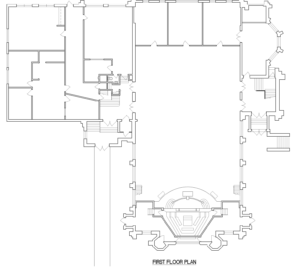
Sanctuary Level

Preliminary 3-D Rendering of Option B. (Any additions to the building will match the building.)
Option B
Changes to Current Structure and Layout
- Addition on south side – includes elevator and steps to sanctuary and fellowship hall.
- Open up wall to create new gathering space
- Add accessible toilets in Sanctuary.
- Add ramps through current nursery space and rearrange internally.
- Add lift into Cook Hall from Fellowship Hall.


Basement Level


Sanctuary Level
PROS
- Minimal structural changes.
- Adds access to:
- offices
- cook hall
- nursery
- More economical option
CONS
- The use of lifts still makes people nervous
- Multi-step process to get from floor to floor.
- Does not reach every space in building. (6 of 13 floors)
PROS
- Welcoming space
- True elevator makes space for caskets
- True elevator is more comfortable for people
- Adds bathroom to sanctuary level
- Shows priorities of sanctuary and fellowship hall as primary spaces of building.
- Drop Off Space at Entrance
CONS
- Significantly more expensive
- Shifts primary entrance to building
- Does not reach every space in building. (6 of 13 floors)
